C14 | Lesní stráně
Menu

C14

2+kk
Patro
C–D 1.NP
Orientace
JZ
Podlahová plocha jednotky *
58,4 m²
Celková prodejní plocha
91,0 m²
Energetický štítek budovy
B (velmi úsporná)
Stav
Volný
Příslušenství v ceně
Terasa
7,6 m²
Terasa
25,0 m²
Cena vč. DPH *
Na vyžádání
Cena bez DPH
Příslušenství za příplatek
Parkovací stání
povinný příplatek
Sklepní kóje
povinný příplatek
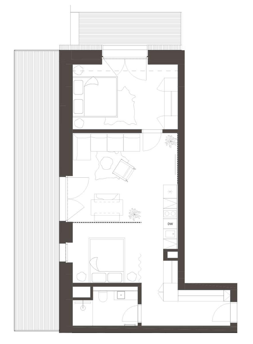
Popis jednotky
1 - Chodba
6,8 m²
4 - Ložnice
14,0 m²
3 - Obývací pokoj
31,3 m²
2 - Koupelna
4,5 m²
Plocha příček
1,8 m²
Podlahová plocha jednotky
58,4 m²
5 - Terasa
7,6 m²
6 - Terasa
25,0 m²
Celková prodejní plocha
91,0 m²

Situace

Patro

Plán podlaží

Využijte bezplatné služby našich interních finančních specialistů. Vyřídíte vše na jednom místě. Bez starostí.

Rádi vám pomůžeme s financováním vašeho vysněného bytu nebo zhodnotíme doplatek kupní ceny než dojde ke kolaudaci.

Nezávislé poradenství

Kromě standardních realitních služeb poskytujeme také ucelenou nabídku všech dostupných hypotečních a úvěrových produktů na trhu. Naši poradci jsou zcela nezávislí na konkrétních finančních institucích. To nám umožňuje najít optimální způsob financování podle vašich potřeb.

Komplexní servis

Vyřešíme s vámi prodej starého bytu, pomůžeme s profinancováním první splátky, najdeme nejvýhodnější hypotéku na trhu a zajistíme exkluzivní podmínky pojištění. Vše na jednom místě, bez zbytečného papírování a starostí.

Koupě bytu bez rizika

Pokud pro vás zabezpečujeme financování, v průběhu schvalování hypotéky vám držíme předběžnou rezervaci bytu bez nutnosti skládat rezervační poplatek. Nemusíte tak mít obavy, že o rezervaci přijdete, když proces přesáhne stanovenou lhůtu.

15 %

Na nový byt vám stačí pouze 15 % vlastních zdrojů (10 % u mladších 36 let), zbytek kupní ceny platíte až po dokončení projektu. Námi sjednaná smluvní banka vám navíc v mezidobí garantuje podmínky hypotéky schválené v okamžiku podpisu rezervační smlouvy. Pokud by před dokončením projektu úrokové sazby klesly, zabezpečíme přeschválení za výhodnějších podmínek.

  • Nabízíme zvýhodněné předsjednané nabídky hypotečních balíčků

    Na míru konkrétnímu projektu jsme připravili atraktivní nabídku zvýhodněných hypotečních balíčků se sníženou úrokovou sazbou a mnoha bonusy navíc.

    Více informací vám sdělí naši obchodní zástupci.

    *Zvýhodnění úroková sazba oproti aktuální standardní sazbě.
  • Hypoteční kalkulačka

    Možnosti financování

    15
    %*
    *Maximální výše úvěru 85% (90 % u mladších 36 let)
    let
    Ne
    Ano
    4,79%
    4,89%
    5,04%
    4,59%
    %
    Měsíční splátka

    Údaje této kalkulace mají informativní charakter. Výpočet vychází z průměrné úrokové sazby 2,49 %.
    Pro podrobnější informace, prosím, kontaktujte hypotečního specialistu.

Spojením nákupu bytu s investicí do fondu získáte výhodné podmínky

zhodnocení 8 % p.a.

Pokud disponujete celou kupní částkou, nabízíme zajímavé zhodnocení doplatku kupní ceny před dokončením projektu.

Více informací

Našim klientům nabízíme prémiové podmínky pojištění

sleva 40 %

Snažíme se nabídnout vždy něco navíc. Pro naše klienty máme vyjednané exkluzivní podmínky pojištění bytu, domácnosti, odpovědnosti a další, s až 40% slevou oproti standardní ceně pojištění

Více informací

Koupě nemovitosti krok za krokem

  • Přehled jednotek a ceník

    Všechny dostupné
    A–B 1.NP
    A–B 2.NP
    A–B 3.NP
    A–B 4.NP
    C–D 1.NP
    C–D 2.NP
    C–D 3.NP
    C–D 4.NP
    Číslo
    Podlaží
    Dispozice
    Orientace
    Plocha jednotky
    Lodžie/Terasa
    Celková prodejní plocha
    Cena bez DPH*

    C11 | 1+kk | 53,4 m²

    C–D 1.NP
    Lodžie/Terasa: - / 8,1 m²
    Cena bez DPH:

    C12 | 1+kk | 53,5 m²

    C–D 1.NP
    Lodžie/Terasa: - / 8,2 m²
    Cena bez DPH:

    C13 | 1+kk | 53,5 m²

    C–D 1.NP
    Lodžie/Terasa: - / 8,2 m²
    Cena bez DPH:

    C14 | 2+kk | 91,0 m²

    C–D 1.NP
    Lodžie/Terasa: - / 7,6 m² + 25,0 m²
    Cena bez DPH:

    D11 | 2+kk | 91,1 m²

    C–D 1.NP
    Lodžie/Terasa: - / 8,7 m² + 9,9 m²
    Cena bez DPH:

    D12 | 1+kk | 54,7 m²

    C–D 1.NP
    Lodžie/Terasa: - / 9,4 m²
    Cena bez DPH:

    D13 | 2+kk | 92,2 m²

    C–D 1.NP
    Lodžie/Terasa: - / 8,9 m² + 25,0 m²
    Cena bez DPH:

    C21 | 1+kk | 46,4 m²

    C–D 2.NP
    Lodžie/Terasa: 3,7 m² / -
    Cena bez DPH:

    C22 | 1+kk | 46,4 m²

    C–D 2.NP
    Lodžie/Terasa: 3,7 m² / -
    Cena bez DPH:

    C23 | 1+kk | 46,4 m²

    C–D 2.NP
    Lodžie/Terasa: 3,7 m² / -
    Cena bez DPH:

    C24 | 2+kk | 59,4 m²

    C–D 2.NP
    Lodžie/Terasa: 3,7 m² / -
    Cena bez DPH:

    D21 | 2+kk | 74,6 m²

    C–D 2.NP
    Lodžie/Terasa: 3,7 m² / -
    Cena bez DPH:

    D22 | 1+kk | 46,4 m²

    C–D 2.NP
    Lodžie/Terasa: 3,7 m² / -
    Cena bez DPH:

    D23 | 2+kk | 59,4 m²

    C–D 2.NP
    Lodžie/Terasa: 3,7 m² / -
    Cena bez DPH:

    C31 | 1+kk | 44,0 m²

    C–D 3.NP
    Lodžie/Terasa: 3,7 m² / -
    Cena bez DPH:

    C32 | 1+kk | 44,0 m²

    C–D 3.NP
    Lodžie/Terasa: 3,7 m² / -
    Cena bez DPH:

    C33 | 1+kk | 44,0 m²

    C–D 3.NP
    Lodžie/Terasa: 3,7 m² / -
    Cena bez DPH:

    C34 | 2+kk | 56,9 m²

    C–D 3.NP
    Lodžie/Terasa: 3,7 m² / -
    Cena bez DPH: Rezervováno

    D31 | 2+kk | 69,1 m²

    C–D 3.NP
    Lodžie/Terasa: 3,7 m² / -
    Cena bez DPH:

    D32 | 1+kk | 43,9 m²

    C–D 3.NP
    Lodžie/Terasa: 3,7 m² / -
    Cena bez DPH:

    D33 | 2+kk | 56,7 m²

    C–D 3.NP
    Lodžie/Terasa: 3,7 m² / -
    Cena bez DPH:

    C41 | 1+kk | 41,3 m²

    C–D 4.NP
    Lodžie/Terasa: 3,7 m² / -
    Cena bez DPH:

    C42 | 1+kk | 41,3 m²

    C–D 4.NP
    Lodžie/Terasa: 3,7 m² / -
    Cena bez DPH:

    C43 | 1+kk | 41,3 m²

    C–D 4.NP
    Lodžie/Terasa: 3,7 m² / -
    Cena bez DPH: Rezervováno

    C44 | 2+kk | 54,4 m²

    C–D 4.NP
    Lodžie/Terasa: 3,7 m² / -
    Cena bez DPH:

    D41 | 2+kk | 63,6 m²

    C–D 4.NP
    Lodžie/Terasa: 3,7 m² / -
    Cena bez DPH:

    D42 | 1+kk | 41,3 m²

    C–D 4.NP
    Lodžie/Terasa: 3,7 m² / -
    Cena bez DPH: Rezervováno

    D43 | 2+kk | 54,4 m²

    C–D 4.NP
    Lodžie/Terasa: 3,7 m² / -
    Cena bez DPH: Rezervováno
    Číslo
    Podlaží
    Dispozice
    Orientace
    Plocha jednotky
    Lodžie/Terasa
    Celková prodejní plocha
    Cena bez DPH*
    A11 A–B 1.NP 1+kk SZ 48,4 m² - / 8,1 m² 56,5 m² Prodáno
    A12 A–B 1.NP 1+kk SZ 45,4 m² - / 8,2 m² 53,6 m² Prodáno
    A13 A–B 1.NP 1+kk SZ 45,4 m² - / 8,2 m² 53,6 m² Prodáno
    A14 A–B 1.NP 2+kk JZ 57,8 m² - / 7,6 m² + 9,1 m² 74,5 m² Prodáno
    Číslo
    Podlaží
    Dispozice
    Orientace
    Plocha jednotky
    Lodžie/Terasa
    Celková prodejní plocha
    Cena bez DPH*
    A21 A–B 2.NP 1+kk SZ 45,8 m² 3,7 m² / - 49,4 m² Prodáno
    A22 A–B 2.NP 1+kk SZ 42,8 m² 3,7 m² / - 46,4 m² Prodáno
    A23 A–B 2.NP 1+kk SZ 42,8 m² 3,7 m² / - 46,4 m² Prodáno
    A24 A–B 2.NP 2+kk JZ 55,8 m² 3,7 m² / - 59,4 m² Prodáno
    B21 A–B 2.NP 2+kk SZ 64,3 m² 3,7 m² / - 71,7 m² Prodáno
    B22 A–B 2.NP 1+kk SZ 42,8 m² 3,7 m² / - 46,5 m² Prodáno
    B23 A–B 2.NP 2+kk S 55,6 m² 3,7 m² / - 59,3 m² Prodáno
    Číslo
    Podlaží
    Dispozice
    Orientace
    Plocha jednotky
    Lodžie/Terasa
    Celková prodejní plocha
    Cena bez DPH*
    A31 A–B 3.NP 1+kk SZ 43,0 m² 3,7 m² / - 46,7 m² Prodáno
    A32 A–B 3.NP 1+kk SZ 40,3 m² 3,7 m² / - 44,0 m² Prodáno
    A33 A–B 3.NP 1+kk SZ 40,3 m² 3,7 m² / - 44,0 m² Prodáno
    A34 A–B 3.NP 2+kk JZ 53,2 m² 3,7 m² / - 56,9 m² Prodáno
    B31 A–B 3.NP 2+kk SZ 59,0 m² 3,7 m² / - 66,4 m² Prodáno
    B32 A–B 3.NP 1+kk SZ 40,3 m² 3,7 m² / - 44,0 m² Prodáno
    B33 A–B 3.NP 2+kk S 53,2 m² 3,7 m² / - 56,9 m² Prodáno
    Číslo
    Podlaží
    Dispozice
    Orientace
    Plocha jednotky
    Lodžie/Terasa
    Celková prodejní plocha
    Cena bez DPH*
    A41 A–B 4.NP 1+kk SZ 40,3 m² 3,7 m² / - 44,0 m² Prodáno
    A42 A–B 4.NP 1+kk SZ 37,7 m² 3,7 m² / - 41,4 m² Prodáno
    A43 A–B 4.NP 1+kk SZ 37,7 m² 3,7 m² / - 41,4 m² Prodáno
    A44 A–B 4.NP 2+kk JZ 50,7 m² 3,7 m² / - 54,4 m² Prodáno
    B41 A–B 4.NP 2+kk SZ 53,7 m² 3,7 m² / - 61,0 m² Prodáno
    B42 A–B 4.NP 1+kk SZ 37,7 m² 3,7 m² / - 41,3 m² Prodáno
    B43 A–B 4.NP 2+kk S 50,7 m² 3,7 m² / - 54,3 m² Prodáno
    Číslo
    Podlaží
    Dispozice
    Orientace
    Plocha jednotky
    Lodžie/Terasa
    Celková prodejní plocha
    Cena bez DPH*

    C11 | 1+kk | 53,4 m²

    C–D 1.NP
    Lodžie/Terasa: - / 8,1 m²
    Cena bez DPH:

    C12 | 1+kk | 53,5 m²

    C–D 1.NP
    Lodžie/Terasa: - / 8,2 m²
    Cena bez DPH:

    C13 | 1+kk | 53,5 m²

    C–D 1.NP
    Lodžie/Terasa: - / 8,2 m²
    Cena bez DPH:

    C14 | 2+kk | 91,0 m²

    C–D 1.NP
    Lodžie/Terasa: - / 7,6 m² + 25,0 m²
    Cena bez DPH:

    D11 | 2+kk | 91,1 m²

    C–D 1.NP
    Lodžie/Terasa: - / 8,7 m² + 9,9 m²
    Cena bez DPH:

    D12 | 1+kk | 54,7 m²

    C–D 1.NP
    Lodžie/Terasa: - / 9,4 m²
    Cena bez DPH:

    D13 | 2+kk | 92,2 m²

    C–D 1.NP
    Lodžie/Terasa: - / 8,9 m² + 25,0 m²
    Cena bez DPH:
    Číslo
    Podlaží
    Dispozice
    Orientace
    Plocha jednotky
    Lodžie/Terasa
    Celková prodejní plocha
    Cena bez DPH*

    C21 | 1+kk | 46,4 m²

    C–D 2.NP
    Lodžie/Terasa: 3,7 m² / -
    Cena bez DPH:

    C22 | 1+kk | 46,4 m²

    C–D 2.NP
    Lodžie/Terasa: 3,7 m² / -
    Cena bez DPH:

    C23 | 1+kk | 46,4 m²

    C–D 2.NP
    Lodžie/Terasa: 3,7 m² / -
    Cena bez DPH:

    C24 | 2+kk | 59,4 m²

    C–D 2.NP
    Lodžie/Terasa: 3,7 m² / -
    Cena bez DPH:

    D21 | 2+kk | 74,6 m²

    C–D 2.NP
    Lodžie/Terasa: 3,7 m² / -
    Cena bez DPH:

    D22 | 1+kk | 46,4 m²

    C–D 2.NP
    Lodžie/Terasa: 3,7 m² / -
    Cena bez DPH:

    D23 | 2+kk | 59,4 m²

    C–D 2.NP
    Lodžie/Terasa: 3,7 m² / -
    Cena bez DPH:
    Číslo
    Podlaží
    Dispozice
    Orientace
    Plocha jednotky
    Lodžie/Terasa
    Celková prodejní plocha
    Cena bez DPH*

    C31 | 1+kk | 44,0 m²

    C–D 3.NP
    Lodžie/Terasa: 3,7 m² / -
    Cena bez DPH:

    C32 | 1+kk | 44,0 m²

    C–D 3.NP
    Lodžie/Terasa: 3,7 m² / -
    Cena bez DPH:

    C33 | 1+kk | 44,0 m²

    C–D 3.NP
    Lodžie/Terasa: 3,7 m² / -
    Cena bez DPH:

    C34 | 2+kk | 56,9 m²

    C–D 3.NP
    Lodžie/Terasa: 3,7 m² / -
    Cena bez DPH: Rezervováno

    D31 | 2+kk | 69,1 m²

    C–D 3.NP
    Lodžie/Terasa: 3,7 m² / -
    Cena bez DPH:

    D32 | 1+kk | 43,9 m²

    C–D 3.NP
    Lodžie/Terasa: 3,7 m² / -
    Cena bez DPH:

    D33 | 2+kk | 56,7 m²

    C–D 3.NP
    Lodžie/Terasa: 3,7 m² / -
    Cena bez DPH:
    Číslo
    Podlaží
    Dispozice
    Orientace
    Plocha jednotky
    Lodžie/Terasa
    Celková prodejní plocha
    Cena bez DPH*

    C41 | 1+kk | 41,3 m²

    C–D 4.NP
    Lodžie/Terasa: 3,7 m² / -
    Cena bez DPH:

    C42 | 1+kk | 41,3 m²

    C–D 4.NP
    Lodžie/Terasa: 3,7 m² / -
    Cena bez DPH:

    C43 | 1+kk | 41,3 m²

    C–D 4.NP
    Lodžie/Terasa: 3,7 m² / -
    Cena bez DPH: Rezervováno

    C44 | 2+kk | 54,4 m²

    C–D 4.NP
    Lodžie/Terasa: 3,7 m² / -
    Cena bez DPH:

    D41 | 2+kk | 63,6 m²

    C–D 4.NP
    Lodžie/Terasa: 3,7 m² / -
    Cena bez DPH:

    D42 | 1+kk | 41,3 m²

    C–D 4.NP
    Lodžie/Terasa: 3,7 m² / -
    Cena bez DPH: Rezervováno

    D43 | 2+kk | 54,4 m²

    C–D 4.NP
    Lodžie/Terasa: 3,7 m² / -
    Cena bez DPH: Rezervováno
    Číslo Podlaží Dispozice Variabilní dispozice Orientace Plocha jednotky Lodžie/Terasa Celková prodejní plocha Cena vč. DPH

    C11 | 1+kk | 53,4 m²

    C–D 1.NP
    Orientace SZ
    Lodžie/Terasa: / 8,1 m² / -
    Cena vč. DPH:

    C12 | 1+kk | 53,5 m²

    C–D 1.NP
    Orientace SZ
    Lodžie/Terasa: / 8,2 m² / -
    Cena vč. DPH:

    C13 | 1+kk | 53,5 m²

    C–D 1.NP
    Orientace SZ
    Lodžie/Terasa: / 8,2 m² / -
    Cena vč. DPH:

    C14 | 2+kk | 91,0 m²

    C–D 1.NP
    Orientace JZ
    Lodžie/Terasa: / 7,6 m² + 25,0 m² / -
    Cena vč. DPH:

    D11 | 2+kk | 91,1 m²

    C–D 1.NP
    Orientace SZ
    Lodžie/Terasa: / 8,7 m² + 9,9 m² / -
    Cena vč. DPH:

    D12 | 1+kk | 54,7 m²

    C–D 1.NP
    Orientace SZ
    Lodžie/Terasa: / 9,4 m² / -
    Cena vč. DPH:

    D13 | 2+kk | 92,2 m²

    C–D 1.NP
    Orientace S
    Lodžie/Terasa: / 8,9 m² + 25,0 m² / -
    Cena vč. DPH:

    C21 | 1+kk | 46,4 m²

    C–D 2.NP
    Orientace SZ
    Lodžie/Terasa: / - / -
    Cena vč. DPH:

    C22 | 1+kk | 46,4 m²

    C–D 2.NP
    Orientace SZ
    Lodžie/Terasa: / - / -
    Cena vč. DPH:

    C23 | 1+kk | 46,4 m²

    C–D 2.NP
    Orientace SZ
    Lodžie/Terasa: / - / -
    Cena vč. DPH:

    C24 | 2+kk | 59,4 m²

    C–D 2.NP
    Orientace JZ
    Lodžie/Terasa: / - / -
    Cena vč. DPH:

    D21 | 2+kk | 74,6 m²

    C–D 2.NP
    Orientace SZ
    Lodžie/Terasa: / - / -
    Cena vč. DPH:

    D22 | 1+kk | 46,4 m²

    C–D 2.NP
    Orientace SZ
    Lodžie/Terasa: / - / -
    Cena vč. DPH:

    D23 | 2+kk | 59,4 m²

    C–D 2.NP
    Orientace S
    Lodžie/Terasa: / - / -
    Cena vč. DPH:

    C31 | 1+kk | 44,0 m²

    C–D 3.NP
    Orientace SZ
    Lodžie/Terasa: / - / -
    Cena vč. DPH:

    C32 | 1+kk | 44,0 m²

    C–D 3.NP
    Orientace SZ
    Lodžie/Terasa: / - / -
    Cena vč. DPH:

    C33 | 1+kk | 44,0 m²

    C–D 3.NP
    Orientace SZ
    Lodžie/Terasa: / - / -
    Cena vč. DPH:

    D31 | 2+kk | 69,1 m²

    C–D 3.NP
    Orientace SZ
    Lodžie/Terasa: / - / -
    Cena vč. DPH:

    D32 | 1+kk | 43,9 m²

    C–D 3.NP
    Orientace SZ
    Lodžie/Terasa: / - / -
    Cena vč. DPH:

    D33 | 2+kk | 56,7 m²

    C–D 3.NP
    Orientace S
    Lodžie/Terasa: / - / -
    Cena vč. DPH:

    C41 | 1+kk | 41,3 m²

    C–D 4.NP
    Orientace SZ
    Lodžie/Terasa: / - / -
    Cena vč. DPH:

    C42 | 1+kk | 41,3 m²

    C–D 4.NP
    Orientace SZ
    Lodžie/Terasa: / - / -
    Cena vč. DPH:

    C44 | 2+kk | 54,4 m²

    C–D 4.NP
    Orientace JZ
    Lodžie/Terasa: / - / -
    Cena vč. DPH:

    D41 | 2+kk | 63,6 m²

    C–D 4.NP
    Orientace SZ
    Lodžie/Terasa: / - / -
    Cena vč. DPH:
    Číslo Podlaží Dispozice Variabilní dispozice Orientace Plocha jednotky Lodžie/Terasa Celková prodejní plocha Cena vč. DPH
    Přehled nabízených bytů a ceník je pouze informativní a není návrhem na uzavření smlouvy. Developer si vyhrazuje právo na změny uvedených cen. Způsob výpočtu podlahové plochy bytu v jednotce: Podlahová plocha bytu ve smyslu nařízení vlády č. 366/2013 Sb. – Podlahovou plochu bytu v jednotce tvoří půdorysná plocha všech místností bytu včetně půdorysné plochy všech svislých nosných i nenosných konstrukcí uvnitř bytu jako jsou stěny, sloupy, pilíře, komíny a obdobně svislé konstrukce. Půdorysná plocha je vymezena vnitřním lícem svislým konstrukcí ohraničujících byt včetně jejich povrchových úprav, není započtena šachta sousedící s nosnou stěnou. Započítává se také podlahová plocha zakrytá zabudovanými předměty, jako jsou zejména skříně ve zdech v bytě, vany a jiné zařizovací předměty ve vnitřní ploše bytu.

Nezávazná rezervace